PUBG Mobile 3.1 Adds New Home Mode: How to Build Your Dream House and More(02)

PUBG Mobile 3.1 Adds New Home Mode: How to Build Your Dream House and More(02)

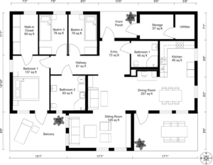
Image gallery: Design Your Own House Free: Your Complete Guide to DIY Home Planning

Make Your Own Blueprint How to Draw Floor Plans Beers that Don’t Taste Like Beer: Your Complete Guide PUBG Mobile 3.1 Adds New Home Mode: How to Build Your Dream House and More Design Your Own Perfect Home With Autodesk Homestyler TUFF+ House Architect TUFF+ Housing Kits House Interior Design Wallpaper Add Your Photos ID:1487131 Pokemon Cards - Design your own by Ms Mouws 5th Grade TpT Floor Plan Inside Whole House Design - houseplans.weloveprintables Design Your Own Town Design-Your-Own Hanbok Coloring Sheet - Chima